POLDER DOOR – Sliding Watertight Door

POLDER DOOR – Sliding Watertight Door

  • Light weight construction
  • Electrical driven and operated
  • ‘Plug and play’ delivery
  • Low noise
  • Designed according SOLAS regulation
  • Effortless movement during emergency situations
  • Watertight up to 7 mwc
Watertight sliding door
Watertight sliding door

Options and extra’s

  • Clear opening on clients request
  • Motor orientation downwards or upwards
  • Cover plate
  • Sill plate
  • Aluminum frame and door
  • The watertight doors can be certified by all major classification societies
  • Fully finished, with filler and paint

Plug and play delivery

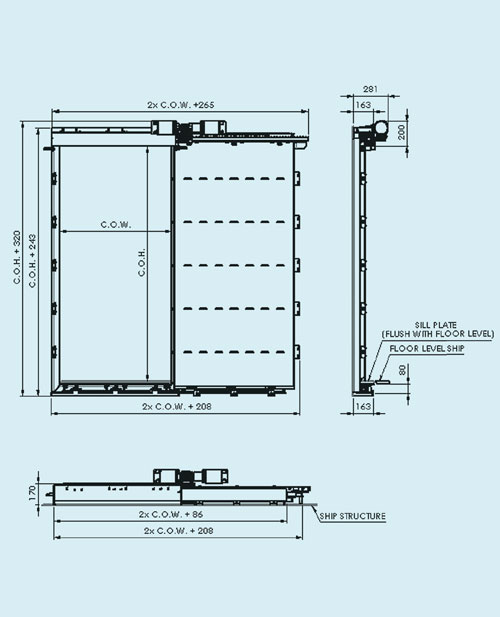
Sliding watertight doors – Technical specifications

The watertight door and frame are manufactured from steel Grade A and stainless steel 316 L. Completely electric operation. Door, frame and driving components are assembled and tested in the Newthex factory in order to deliver the door ready for easy installation on board.

Dimensions: Clear opening from 700 x 1700 mm to 1000 x 2100 mm, other dimensions on request.

Electrical equipment consists of:

  • Main motor – powered 24 V d.c.
  • Emergency motor – powered 24 V d.c.
  • Main electrical control panel
  • Control push buttons
  • Two hand-generator for manual movement – 24 V d.c.
  • Proximity switches for open and closed door position
  • Visual and acoustic alarm during door movement

Most important option:

  • Aluminium frame and door
  • Wheelhouse panel
  • Sill plate

 

Measures and weights for Newthex watertight sliding doors: (Other dimensions on request)